6 bilder
Jena, Jena Karte
...Jena- elektrisch höhenverslbare Tische- ergonomische Bürostühle- 3 große Curved Monitore- Highspeed Internet- privates Schließfach- 2 MeetingräumeUnsere Tarife:- 2-Tage Pass zu 49,-€ pro Monat- 5-Tage Pass zu 99,-€ pro Monat- 10-Tage Pass zu 159,-€ p...
12 bilder
Jena Karte
...Wohnung über eine Gasetagenheizung verfügt. Für Heizung und Warmwasser muss daher ein separater Gasvertrag abgeschlossen werden. Für Besichtigungsanfragen wenden Sie sich bitte schriftlich über die jeweilige Anzeige an uns. Sie haben Fragen zur Wohnu...
Foto anschauen
Jena Karte
...1 Duplex-Slplatz, Miete: 50,00 EUR Die Wohnung liegt in attraktiver Wohnlage in Jena-Ot: ca. 5-8 Minuten bis ins Stadtze... ruhige Wohnlage mit guter Infrastruktur suchen. 1 Wohn-/Schlafraum separate Küche...
10 bilder
Jena
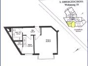
...Wohnung verfügt bei ca. 41,13 m² Wohnfläche mit einem Vorraum, einem Wohnzimmer, ein Schlafzimmer, Duschbad mit Fenster sowie einer separaten Küche mit Einbauküche. Im Keller befindet sich ein Abslraum sowie der Waschmaschinenraum. Nettomiete: 500,-...
Foto anschauen
Jena
...Jena´s studieren. Die Vermietung erfolgt immer pro Semester und wird bei Gefallen ohne Frist weiter verlängert. Als Mindestmietzeit sollten schon zwei Semester oder mehr angestrebt sein. Sie sind ein männlicher Student, beherrschen die Deutsche Sprac...